
DS156-G2-2SP z garażem 2 stanowiskowym
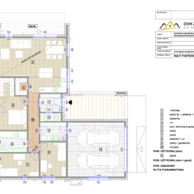
Nowoczesny parterowy dom z garażem dwustanowiskowym, zaprojektowany z myślą o komforcie na jednym poziomie. Przestronna strefa dzienna z salonem, jadalnią i kuchnią płynnie łączy się z tarasem, a w części prywatnej przewidziano funkcjonalne zaplecze sanitarne oraz pokoje. Projekt dostępny jest w dwóch wariantach: z 3 lub 4 sypialniami – w zależności od potrzeb domowników.
Wybierając jeden z naszych projektów, projekt architektoniczno-budowlany jest wliczony w cenę budowy.
Formularz kontaktowy
Jeśli stoisz przed wyborem projektu domu, zastanawiasz się jaki wariant wybrać zapraszamy do kontaktu! Doradzimy, przedstawimy szczegóły oferty i odpowiemy na wszelkie zapytania!






